Attico in vendita

Roma, Via dei Malatesta - Bravetta
€ 315.000
3 locali 3 locali
97 Mq 97 Mq
1 bagno 1 bagno

Attico in vendita

Roma, Via dei Malatesta - Bravetta

Descrizione annuncio

VIA DEI MALATESTA - Zona Bravetta

In una delle zone più tranquille e residenziali di Bravetta, proponiamo in vendita un splendido attico di 90 mq al quarto ed ultimo piano di una palazzina in tinta, senza ascensore.

L'immobile, in ottimo stato interno, conquista per la sua luminosità e per gli ampi spazi vivibili, resi ancora più piacevoli dalla doppia esposizione est/ovest, che regala luce naturale per tutto il giorno.

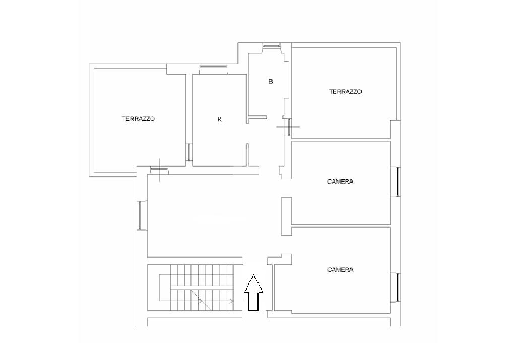
La casa è composta da ingresso, salone, cucina abitabile, due camere matrimoniali e bagno con finestra.

Fiore all'occhiello dell'abitazione sono i due terrazzi abitabili, perfetti per pranzi all'aperto, momenti di relax o per godersi splendidi tramonti sui tetti del quartiere.

Completano la proprietà un comodo box auto e una cantina, ideali per chi cerca comfort e praticità ogni giorno.

Un attico elegante, accogliente e pronto da vivere, in una posizione riservata ma vicina a tutti i principali servizi e collegamenti della zona Bravetta.

Contattaci per maggiori informazioni o per fissare una visita allo 06.66.20.124 o al 327.7064026

Mostra tutto

Nelle vicinanze

Trasporto pubblico Trasporto pubblico
Baldo degli Ubaldi
Baldo degli Ubaldi
2,1 Km
Cornelia
Cornelia
2,2 Km
stazione di Roma Aurelia
stazione di Roma Aurelia
2,5 Km
Valle Aurelia
Valle Aurelia
2,8 Km
Casaletto
Casaletto
1,4 Km
Ricariche auto elettriche Ricariche auto elettriche
Crowne Plaza Rome-St. Peter's
860 m
EnelX EVA+ Distributore IP Matic La Pisana
1,5 Km
The Church Palace
1,7 Km
Roma Gregorio VII | EnelX
1,8 Km
Eneldrive Battistini
2,9 Km
Scuole Scuole
Istituto di Istruzione Superiore "Via Silvestri 301"
580 m
Buon Pastore, Licei Malpighi, Ceccherelli, Volta
630 m
Scuole
680 m
Scuola Germanica Roma
1,0 Km
Liceo Classico Eugenio Montale
1,0 Km
Farmacia Farmacia
Farmacia
60 m
Farmacia Pharma Experience Monteverde
2,1 Km
Farmacia Colle Aurelio
2,1 Km
Farmacia Sant'Elena
2,3 Km
Pulker Farma
2,5 Km
Ospedali Ospedali
San Raffaele Pisana
760 m
Clinica Villa Benedetta
2,2 Km
San Carlo di Nancy
2,2 Km
Aurelia Hospital
2,3 Km
IDI (Istituto Dermopatico dell'Immacolata)
2,3 Km
Supermercati Supermercati
Vivo Supermercato
360 m
Pam Local
540 m
Supermercato PIM
680 m
Conad
970 m
Carrefour Market
1,8 Km
Negozi Negozi
Pasta All'Uovo
1,9 Km
Mini Market
2,0 Km
Old England
2,0 Km
Antico Forno Cotugno
2,0 Km
Pascucci
2,3 Km
Bar Bar
Miani
670 m
Maurizio
690 m
Bar
2,7 Km
Quattro Venti
2,8 Km
Bar
2,8 Km
Ristoranti Ristoranti
Ristoranti
90 m
Pharina Pizza Romana
330 m
Pizzeria
390 m
Schiavi d'Abruzzo
470 m
Corona Magnifica
560 m
Mostra tutto

Caratteristiche

Rif.:
61133630
Piano:
4 di 4 (ultimo Piano)
Box:
1
Terrazzi:
2
Camere da letto:
2
Arredamento:
Assente
Mostra tutto
Prezzo Prezzo
€ 315.000
Rata mutuo Rata mutuo
€ 1.468 / mese
Proponi il tuo prezzoProponi il tuo prezzo

Classe Energetica

F
F
F
F
F
F
F
F
F
EP globale non rinnovabile:
3.50 kW h/m² anno
EP invernale del fabbricato:
EP estiva del fabbricato:
Anno di costruzione:
1960
Riscaldamento:
Autonomo
Tipo impianto:
A radiatori
Tipo alimentazione:
Altro

Ti interessa visionare l'immobile?

Fissa un appuntamento  Fissa un appuntamento

Richiedi informazioni

Clicca su Leggi per aprire l'informativa
* Questi campi sono obbligatori

Calcola il tuo mutuo

Semplice e senza impegno
Anticipo

( % )
Mutuo

( % )

pochi semplici passi

inserisci i tuoi dati
Questionario completato
Grazie per aver richiesto un appuntamento senza impegno con un nostro Consulente del Credito e Assicurativo.

Hai inserito correttamente tutti i dati necessari e a breve riceverai una e-mail con un link da convalidare per inviare i tuoi dati.
Affiliato
Studio Bravetta Pisana Srl
Via Della Pisana, 108/110 00163 Roma (RM)

Il nostro staff


  • Federico Felicioni
    Affiliato

  • A. Federica Loccia
    Coordinatrice

  • Carlo Tony Micera
    Collaboratore

  • Paola Micera
    Coordinatrice

  • Federico Mafrica
    Collaboratore

  • Gianluigi Pugliese
    Collaboratore

  • Francesco Pagano
    Collaboratore
Via Della Pisana, 108/110 00163 Roma (RM)
Zona: Bravetta-Pisana
Mostra su mappa
Orari: Lunedì 09 - 20 Martedì 09 - 20 Mercoledì 09 - 20 Giovedì 09 - 20 Venerdì 09 - 20 Sabato 09 - 19 Domenica Chiuso
Affiliato
Studio Bravetta Pisana Srl
Via Della Pisana, 108/110 00163 Roma (RM)

2025 Tecnocasa Franchising S.p.A. - P. IVA 08365160152 - Via Monte Bianco 60/A 20089 Rozzano (MI). Ogni agenzia ha un proprio titolare ed è autonoma. Privacy policy | Policy utilizzo | Cookie policy