Attico in vendita

Roma, Vicolo degli Orti Portuensi - Portuense
€ 589.000
4 locali 4 locali
160 Mq 160 Mq
2 bagni 2 bagni

Attico in vendita

Roma, Vicolo degli Orti Portuensi - Portuense

Descrizione annuncio

In Vicolo degli Orti Portuensi, cuore del quartiere Portuense, proponiamo in vendita un meraviglioso ATTICO posto al quarto piano con ascensore.

La zona è tra le più richieste del quadrante: tranquilla, residenziale, ma al tempo stesso servita da scuole, supermercati, negozi e a pochi metri da Largo La Loggia.

Ottimi i collegamenti con il centro di Roma, Trastevere, il GRA e l’aeroporto di Fiumicino.

L’immobile si distingue per 3 caratteristiche principali:

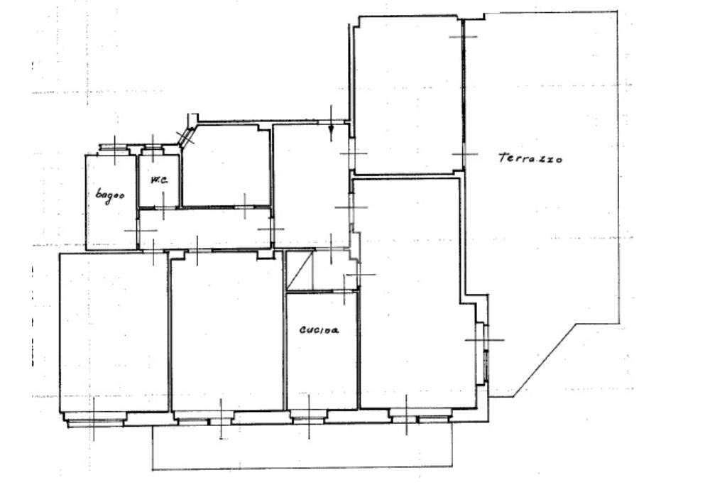
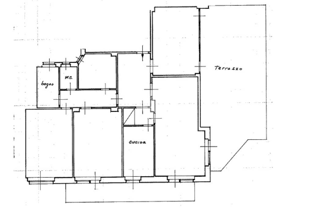
-Terrazzo di 80 mq recentemente ristrutturato, ideale per cene all’aperto, momenti di relax o per chi desidera uno spazio esterno vivibile tutto l’anno.

- Ampia metratura interna, che con i suoi 148 mq consente di creare una casa su misura con spazi generosi e funzionali.

- Luminosità e privacy, grazie all’esposizione aperta e all’ultimo piano, che garantiscono luce naturale in ogni ambiente e massima tranquillità.

La disposizione interna prevede ingresso, salone, cucina abitabile, due camere da letto, una cameretta, ripostiglio e due bagni.

L’appartamento necessita di lavori di ristrutturazione, offrendo così l’opportunità di personalizzarlo in base al proprio gusto e alle proprie esigenze.

Completa la proprietà anche un balcone che garantisce ulteriore sfogo esterno.

Questa soluzione è ideale per famiglie che cercano spazi comodi e funzionali, per coppie che desiderano vivere in una zona residenziale con servizi a portata di mano, e per chi sogna una casa con un grande terrazzo dove trascorrere momenti all’aperto senza rinunciare alla comodità della città.

Per prenotare il tuo appuntamento inviaci un messaggio al 3426221855

Mostra tutto

Nelle vicinanze

Trasporto pubblico Trasporto pubblico
EUR Magliana
EUR Magliana
2,5 Km
Marconi
Marconi
2,6 Km
Roma Trastevere
Roma Trastevere
2,3 Km
Basilica San Paolo
Basilica San Paolo
2,7 Km
Gianicolense/Ravizza
Gianicolense/Ravizza
1,5 Km
Ricariche auto elettriche Ricariche auto elettriche
Supermercato PIM Newton
500 m
Garage Berardo | EnelX
1,9 Km
Roma Val Fiorita | EnelX Fast
2,6 Km
Roma Val Fiorita | EnelX
2,6 Km
Eneldrive Palazzo della Civiltà Italiana
2,8 Km
Scuole Scuole
Istituto Comprensivo "Via Solidati Tiburzi"
430 m
I.C.Margherita Hack
920 m
Istituto Paritario "A. Ruiz"
980 m
Scuola secondaria di primo grado "Antonio Gramsci"
1,0 Km
Roma Tre - Facoltà di Scienze Matematiche, Fisiche e Naturali
1,6 Km
Farmacia Farmacia
Farmacia Dei Colli
290 m
Farmacia
420 m
Parafarmacia doc*Frattini
720 m
Farmacia Portuense
860 m
Farmacia Gina Mucelli
1,0 Km
Ospedali Ospedali
Ospedale Carlo Forlanini
940 m
European Hospital
1,0 Km
Istituto nazionale per le malattie infettive "Lazzaro Spallanzani"
1,3 Km
San Camillo-Forlanini
1,5 Km
Ares 118
1,8 Km
Supermercati Supermercati
Conad
380 m
Carrefour Market
430 m
Pim
530 m
doc*Frattini
710 m
Supermercati
800 m
Negozi Negozi
Negozi
520 m
Trevisiol
1,1 Km
Forno Marchetti
1,2 Km
Mini Market
1,7 Km
Il mercatino delle birbe
1,7 Km
Bar Bar
Bar
270 m
Bistrot 139
990 m
Little Coffee
1,7 Km
Bar Marcucci
1,9 Km
Shikafè
2,0 Km
Ristoranti Ristoranti
White Bakery
300 m
Neko
300 m
Magnifico
350 m
Ristoranti
470 m
Ciclostazione Frattini
590 m
Mostra tutto

Caratteristiche

Rif.:
61141036
Piano:
4 di 4 con ascensore (Piano attico)
Balconi:
1
Terrazzi:
1
Camere da letto:
3
Arredamento:
Assente
Mostra tutto
Prezzo Prezzo
€ 589.000
Rata mutuo Rata mutuo
€ 2.777 / mese
Proponi il tuo prezzoProponi il tuo prezzo

Classe Energetica

G
G
G
G
G
G
G
G
G
EP globale non rinnovabile:
175.00 kW h/m² anno
EP globale rinnovabile:
175.00 kW h/m² anno
EP invernale del fabbricato:
EP estiva del fabbricato:
Anno di costruzione:
1967
Riscaldamento:
Centralizzato
Tipo impianto:
A radiatori
Tipo alimentazione:
Altro

Ti interessa visionare l'immobile?

Fissa un appuntamento  Fissa un appuntamento

Richiedi informazioni

Clicca su Leggi per aprire l'informativa
* Questi campi sono obbligatori

Calcola il tuo mutuo

Semplice e senza impegno
Anticipo

( % )
Mutuo

( % )

pochi semplici passi

inserisci i tuoi dati
Questionario completato
Grazie per aver richiesto un appuntamento senza impegno con un nostro Consulente del Credito e Assicurativo.

Hai inserito correttamente tutti i dati necessari e a breve riceverai una e-mail con un link da convalidare per inviare i tuoi dati.
Affiliato
Studio Bravetta Pisana Srl
Via Della Pisana, 108/110 00163 Roma (RM)

Il nostro staff


  • Federico Felicioni
    Affiliato

  • A. Federica Loccia
    Coordinatrice

  • Carlo Tony Micera
    Collaboratore

  • Paola Micera
    Coordinatrice

  • Federico Mafrica
    Collaboratore

  • Gianluigi Pugliese
    Collaboratore

  • Francesco Pagano
    Collaboratore
Via Della Pisana, 108/110 00163 Roma (RM)
Zona: Bravetta-Pisana
Mostra su mappa
Orari: Lunedì 09 - 20 Martedì 09 - 20 Mercoledì 09 - 20 Giovedì 09 - 20 Venerdì 09 - 20 Sabato 09 - 19 Domenica Chiuso
Affiliato
Studio Bravetta Pisana Srl
Via Della Pisana, 108/110 00163 Roma (RM)

2025 Tecnocasa Franchising S.p.A. - P. IVA 08365160152 - Via Monte Bianco 60/A 20089 Rozzano (MI). Ogni agenzia ha un proprio titolare ed è autonoma. Privacy policy | Policy utilizzo | Cookie policy